Dom I5
przebudowa domu w zabudowie bliźniaczej z lat 70-tych
Tematem projektu jest przebudowa domu jednorodzinnego w zabudowie bliźniaczej z lat 70., zlokalizowanego na niewielkiej działce w cichej i zielonej dzielnicy Warszawy. Projekt zrodził się z konieczności dostosowania struktury istniejącego budynku do indywidualnych potrzeb klienta. Dotychczasowy dom był za mały i niefunkcjonalny.
Aby rozpocząć prace budowlane, niezbędne było uzyskanie zgód od odpowiednich urzędów. Mimo braku bezpośredniej ochrony konserwatorskiej nad budynkiem, teren, na którym się on znajduje, objęty jest ochroną. Miało to wpływ na niektóre nasze decyzje projektowe.

Główną ideą projektu było to, aby budynek od ulicy był neutralny wizualnie i jak najmniej różnił się od sąsiadów. Z uwagi na zabudowę bliźniaczą, postawiliśmy na spójność wizualną. Natomiast od strony ogrodu wprowadziliśmy nadwieszoną kubaturę. Zabieg ten pozwolił na usprawnienie funkcji wewnątrz oraz na powiązanie widokowe z zielenią w ogrodzie.

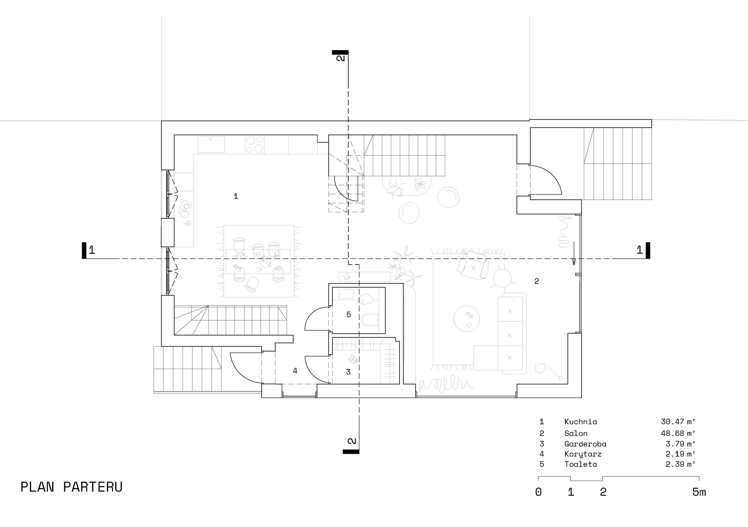
Dokonaliśmy znaczącej reorganizacji układu wnętrz, zachowując jednocześnie dotychczasowe wysokości stropów. Oryginalny program funkcjonalny, utworzony kilkadziesiąt lat temu, nie odpowiadał współczesnym potrzebom rodziny. Centralnie umiejscowiona klatka schodowa ograniczała dostęp światła. Utrudniała też komunikację pomiędzy pokojami dziennymi a kuchnią. Pogłębiliśmy także piwnicę, jednocześnie doświetlając niektóre pomieszczenia.
Kluczowym przedsięwzięciem, które stanowiło punkt wyjścia do stworzenia funkcjonalnego wnętrza, była reorganizacja komunikacji pionowej i poziomej. Zaprojektowaliśmy dwie nowe, otwarte klatki schodowe – jedna prowadząca z poziomu -1 na parter, a druga łącząca parter z poziomem +1.
Jako projektanci skoncentrowaliśmy się na poprawie działania przestrzeni parteru oraz na dodaniu niezbędnych elementów, o które wnioskował inwestor. Istotnym zabiegiem stało się powiększenie strefy salonu i przedsionka przez nadwieszenie ich nad obrysem budynku. Efektem tego rozwiązania była również większa przestrzeń na kuchnię, jadalnię oraz wygodny przedsionek. To umożliwiło też wprowadzenie dużych okien od strony ogrodu.


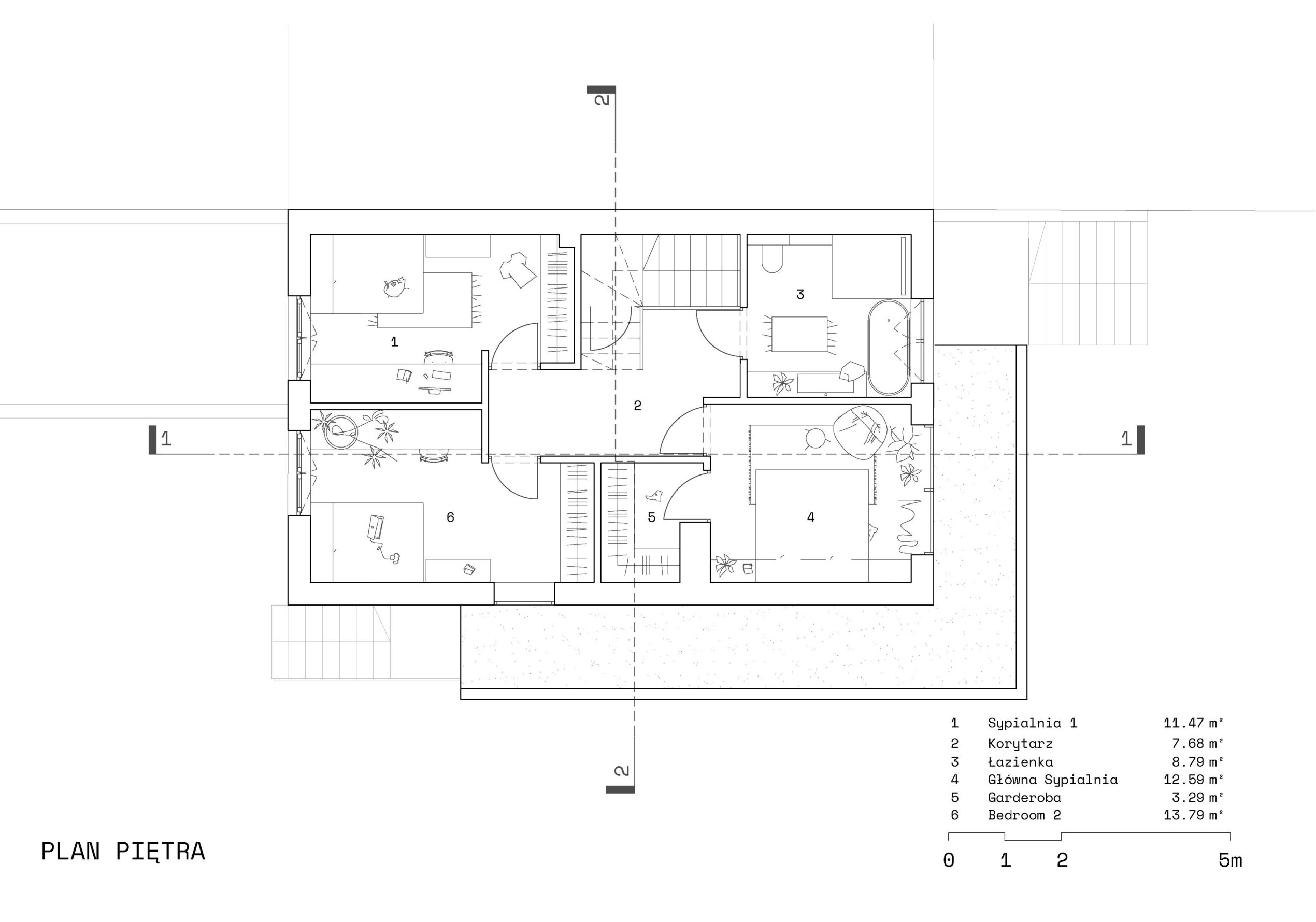
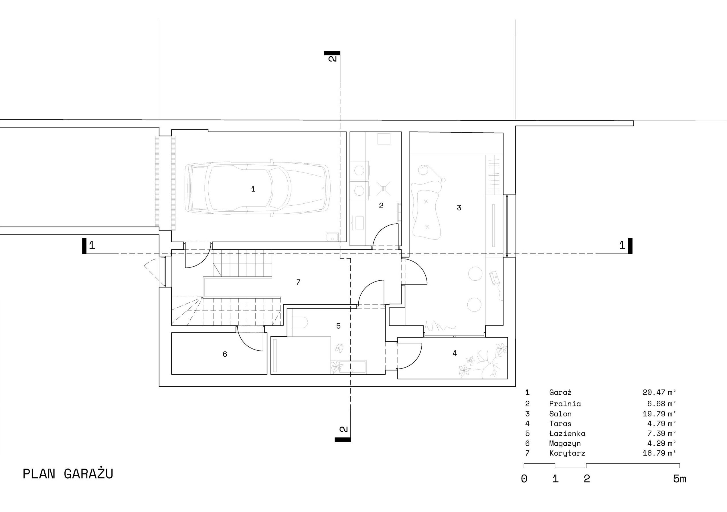
Na poziomie -1 zlokalizowaliśmy garaż, pomieszczenia magazynowe, techniczne, łazienkę oraz pokój, zapewniając doświetlenie kluczowych przestrzeni poprzez „wnęki doświetlające”. Na parterze, w strefie wejścia, znajduje się garderoba i toaleta, a obok zaprojektowaliśmy przestronną kuchnię z długim blatem oraz jadalnię. Część dzienna salonu, umeblowana kanapami od strony południowej, ma bezpośrednie wyjście do ogrodu. Na poziomie +1 umieściliśmy trzy sypialnie, łazienkę z prysznicem i wanną oraz garderobę. Sypialnia właścicieli ma wyjście na taras, częściowo zlokalizowany nad salonem. Dla doświetlenia klatki schodowej i korytarza przewidzieliśmy świetliki dachowe.


Przy tym temacie inwestor powierzył nam projekt architektoniczny jak i projekt wnętrz co usprawniło proces realizacji budynku oraz dało spójny efekt końcowy. W środku obiektu zaproponowaliśmy jasne kolory oraz naturalne materiały. Na posadzce jest dębowa klepka oraz szlifowany beton. Łazienki wykończono marmurowymi płytkami oraz spiekami kwarcowymi.
Front budynku kolorystycznie i stylistycznie nawiązuje do sąsiedniego segmentu. Jest wykończony naturalnym tynkiem pomalowanym na jasnoszaro. Odtworzyliśmy okna o oryginalnych podziałach. Natomiast nadwieszona od boku i ogrodu bryła, wykonana została z szarej betonowej cegły. Umieściliśmy w niej duże okna z proszkowo malowanymi aluminiowymi ramami. Subtelnym detalem dopełniającym ceglaną fasadę są specjalnie zaprojektowane prefabrykowane elementy betonowe, które podkreślają jakość kompozycji elewacji.

